建売住宅・スケルトンハウス!
ご家族のかたち、暮らし方に合わせて自由にアレンジできます。
建売住宅でありながら、注文住宅のようにライフスタイルに合わせて変化できる。スケルトンハウスは「買った瞬間に終わり」ではなく、「暮らしながら育てる」ことを楽しめる新しい住まいの形です。
ロケーション
JR東海道本線「岡崎」駅からバス9分
名鉄バス「福岡小学校北」停留所から徒歩約7分
岡崎市・上地町エリアは、閑静な住環境でありながら、車移動を前提とする三河エリアにおいては生活利便性も十分。上地小学校・福岡中学校が徒歩圏内にあり、周辺幹線道路沿いにはショッピングセンターや飲食店が集積しています。
建売住宅は「完成した状態を買う」もの。
だからこそ、住み始めた瞬間に選択肢が限られてしまうこともあります。
THE SKELETON HOUSEは、その逆。
住んでから、自分たちらしく仕上げていくことを前提にした家です。
エイトデザインのリノベーション事例のように、
素材や造作を少しアップデートするだけで、空間の表情は大きく変わります。
暮らしの変化に合わせて、住まいも育っていく。
そんな日常を楽しめる住まいです。
POINT◎
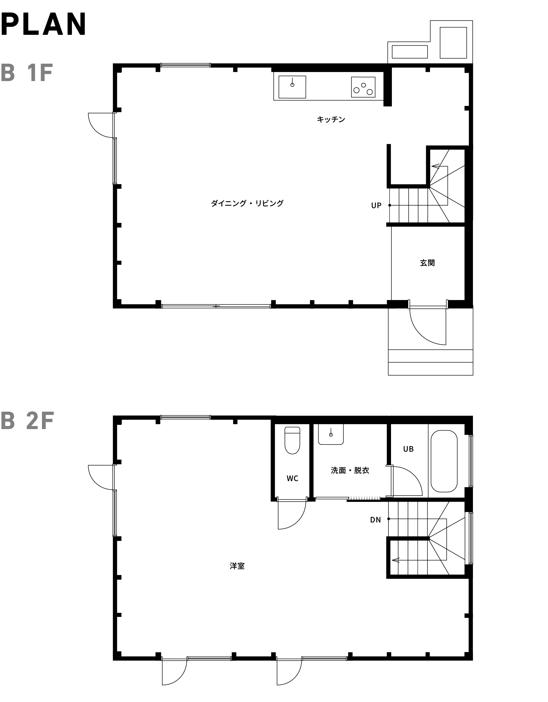
①シンプルで自由にカスタムできるスケルトン設計
あえて過度な装飾や固定された内装を無くした“スケルトン”だからこそ、入居後の仕切り・間取り・仕上げを自分たちのライフスタイルに合わせて自由に変更できます。子どもが小さい時は広い空間、大きくなれば仕切って使うなど、人生の変化に合わせて”育てられる住まい”です。
②「暮らしながら育てる」ことを楽しむ
内装をゼロベースにしているので、クロス・床材・造作棚・DIYなど、好きな素材・デザインで仕上げが可能。完成時が暮らしのスタート。住みながら少しずつ自分らしい空間に育てていける楽しさがあります。
③建売住宅なのに、自由。
建売住宅として購入のしやすさ・高性能な箱(構造体と基本性能)は確保しつつ、注文住宅のような自由な間取り変更や内装計画ができるという、両方の良さを併せ持った新しい住まい方です。購入後も暮らしと共に進化していきます。



【イメージ】


スケルトンハウスは、完成された家ではなく、暮らしながら自分たちで育てていく住まいです。
シンプルな設計だからこそ、ライフスタイルの変化に合わせて自由にアレンジが可能。
建売の安心感と、住んでから広がる自由をあわせ持った、新しい住まいのかたちです。

| 所在地 | 愛知県岡崎市上地町丸根19-1,3 | 交通 | JR東海道本線「岡崎」駅からバス9分
名鉄バス「福岡小学校北」停留所から徒歩約7分 |
|---|---|---|---|
| 築年 | 2025年5月 | 構造・階建て | 木造2階建 |
| 建物面積 | A:89.42㎡/B:89.42㎡ | 土地面積 | A:235.63㎡ / B:215.46㎡ |
| 建ぺい率 | 60% | 容積率 | 160% |
| 土地権利 | 所有権 | 地目 | 宅地 |
| 都市計画 | 市街化区域 | 用途地域 | 第1種住宅地域 |
| 引渡可能時期 | 相談 | 取引様態 | 仲介 |

















